top of page
Create Your First Project
Start adding your projects to your portfolio. Click on "Manage Projects" to get started
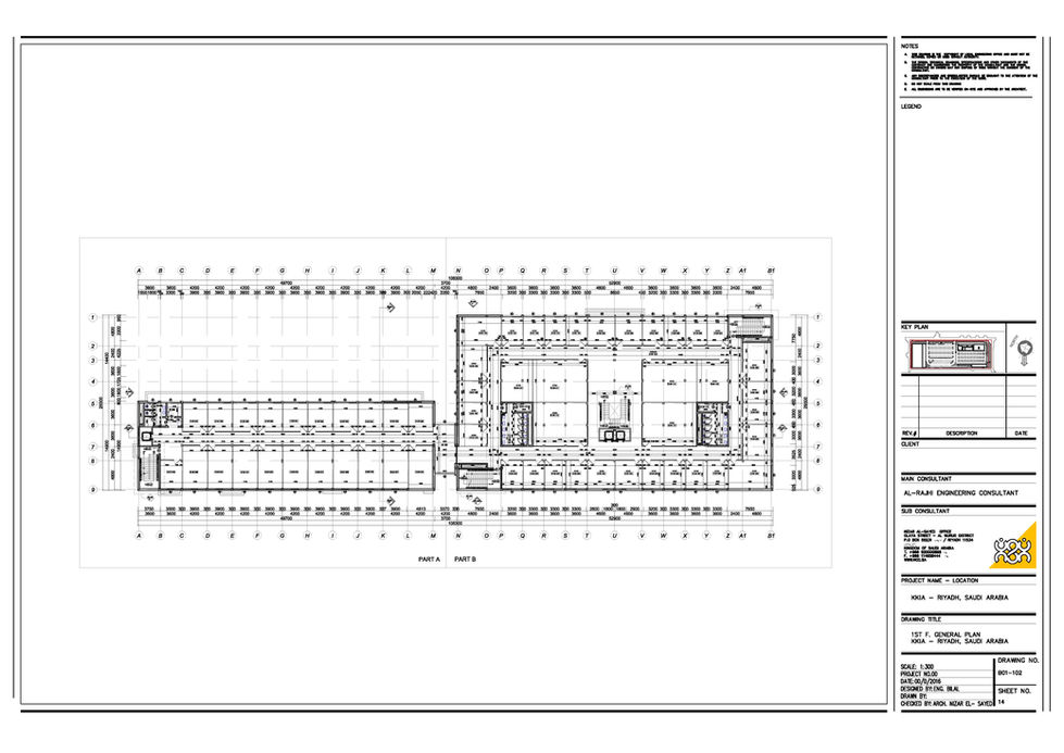
KKIA - King Khaled International Airport
Project type
Design and workshop drawing
Date
January, 2016
Location
Riyadh
My expertise in technical drawing and precise bill of quantities (B.O.Q) production through our recent project at King Khaled International Airport (KKIA), where we contributed to the comprehensive redesign of the Customs offices by delivering detailed architectural, mechanical, and electrical system drawings alongside on-site design support. This project exemplifies our commitment to accuracy and excellence in complex infrastructure developments.






bottom of page

